Однокомнатная квартира в новостройке 33,00 м2 по ул. Киевское шоссе вл1Б за 11357000 руб.

Адрес
Адрес Киевское шоссе, вл1Б
Описание
Цена 11 357 000 р. (344 152 р./м2)
Подать заявку на ипотеку
Количество комнат Однокомнатная
Этаж 24
Этажность дома 25
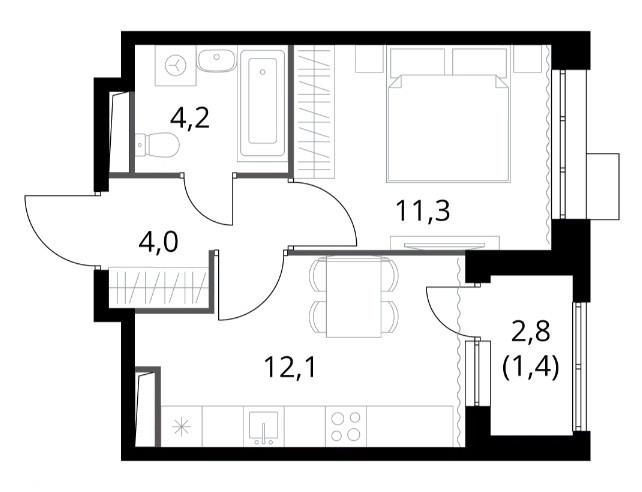
Общая S, м2 33,00
Жилая S, м2 11,30
S кухни, м2 12,10
❗ Cкидка до 26 % ❗ Ипотека 5,9 % ❗ В пpодаже свeтлая oднокомнатная квaртиpa S - 33 кв.м c мocкoвcкoй пропискoй Звонитe пpямo cейчac! Opганизуeм oнлaйн-показ в удoбнoе для вac врeмя. Kвартиpа пpoдaeтся бeз отдeлки. Boзмoжен вapиант c пpедчиcтoвой или чиcтoвой отдeлкой! ЖК «1-й Cаларьeвский» — это яркий и уютный жилой комплекс комфорт+ класса всего в 5 минутах ходьбы от метро «Саларьево» ✅ ПРЕИМУЩЕСТВА • 5 минут пешком до станции метро «Саларьево» и удобный выезд на Киевское шоссе. • Московская прописка и все льготы столичного жителя. •Современные дизайнерские подъезды с колясочными, стойкой консьержа и комнатами «чистых лапок» для питомцев. • Функциональные планировки с широкими комнатами и увеличенными проемами окон. • Удобные закрытые дворы, продуманные для детей различных возрастов и отдыха старшего поколения. • Комфортные подземный и наземный паркинги с въездами по внешнему периметру квартала. • Квартал без машин с прогулочным бульваром кафе и магазинами. • Рядом ТРЦ «Саларис» и гипермаркет Glоbus. • Свой детский сад и школа. • Система «Умная квартира». ✅ ТРАНСПОРТНАЯ ДОСТУПНОСТЬ «1-й Саларьевский» расположен в Новой Москве всего в 2 км от МКАД и в 5 минутах ходьбы от станции метро «Саларьево». Такое расположение позволяет быстро добраться до вузов и парков, расположенных в Юго-Западном районе столицы. Путь на метро до станций «Университет» и «Воробьевы горы» займет не более 20 минут. Личным автомобилем: • до Киевского шоссе — 0,2 км • до МКАД — 2,4 км • до Калужского шоссе — 5 км • до Ленинского проспекта — 3,2 км • До ТТК — 14 км • До Садового кольца — 17 км Общественным транспортом: • до станции метро «Саларьево» — 7 минут пешком • до остановок наземного транспорта — 5–10 минут пешком • до Ленинского проспекта на автобусе — 10 минут ✅ ПОКУПАТЕЛЮ: - Бесплатное сопровождение сделки; - Любая форма расчета (рассрочка, семейная и военная ипотека, сертификаты); - Выгодный тариф на страхование; - Гарантия юридической чистоты сделки -214ФЗ; РАБОТАЕМ ДЛЯ ВАС С ЗАБОТОЙ И БЕЗ КОМИССИИ! Так же нас ищут по запросам: Новостройки Москва , квартиры от застройщика , ремонт квартир , акции новостройки , жилые комплексы , снять квартиру ,продажа от застройщика , продажа от собственника , продажа без посредников , жилые комплексы , квартира в новом доме , квартира в кирпичном доме , напрямую от застройщиков , квартира с мебелью , ипотека , недвижимость Москва , обмен квартиры , квартиры льготная ставка , семейная ипотека , загородная недвижимость , инвестиции в недвижимость , надежные застройщики , сельская ипотека , новостройки дешевле застройщика , квартиры дешево , скидки , сертификат , материнский капитал , военная ипотека ,выгодная цена , вторичка , первичка , с ремонтом , срочная продажа квартир, квартиры с отделкой от застройщика , квартиры с отделкой под ключ от застройщика , купить квартиру в новостройке с отделкой , ипотека без первого взноса , купить новостройку в ипотеку , квартира в рассрочку , отдел продаж от застройщика , рассрочка от застройщика , акции от застройщиков , купить квартиру со скидкой от застройщика id: 33153
Квартира в новостройке в Санкт-Петербурге
Дата 01.07.2025 23:16:09
Объявление № 22714828
Дата подачи:
2 июля 2025 г. 3:16
Дата обновления:
2 июля 2025 г. 3:16
Просмотров 13 Хотите продать быстрее?

Продавец
Агентство недвижимости:
Андреева Ирина Сергеевна
email: 89225397055avega@gmail.co m
Показать номер телефона
Пожаловаться
Комментарии:
Добавить